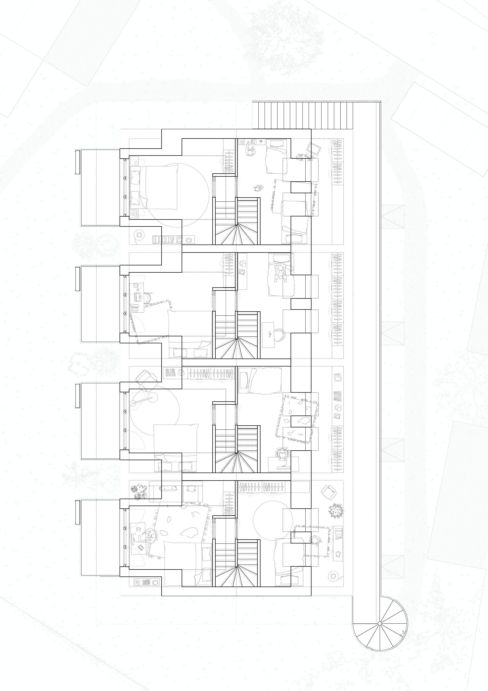
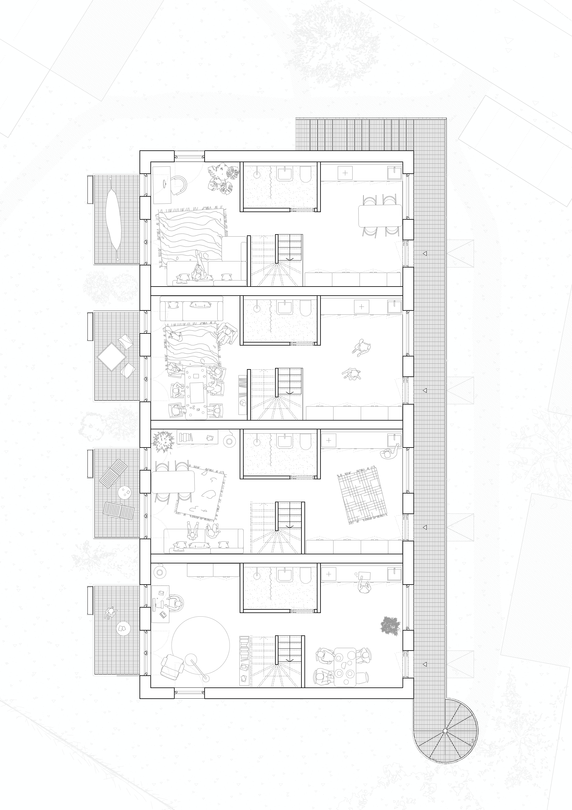
Neubau Mehrfamilienhaus mit 8 Wohneinheiten

Direkt neben seinem in der formsprache sehr ähnlichen Geschwisterbau entsteht auf gleicher Grundfläche ein Haus mit insgesamt 8 Wohneinheiten. Kleinere Wohnungen, darunter 4 2-Zimmer-Wohnungen, wie sie vorort selten zu finden sind, aber dennoch dringend benötigt werden.

Auch hier spielt die Nachhaltigkeit eine ebenso wichtige Rolle. Daher kam auch die bewusste Entscheidung, auf eine Unterkellerung zu verzichten und somit einen wichtigen kosten- und ressourcentreibenden Faktor zu minimieren.

Ein Laubengang erschließt pro Etage 4 nebeneinanderliegende Wohnungen, welche im Dachgeschoss wiederum über eine interne Treppe Maisonettewohnungen bilden. Das Erdgeschoss hingegen ist in diesem Fall eigenständig, wodurch sich die oben beschriebenen, deutlich kleineren Wohnungen ergeben.

Die Ausrichtung dieses Baukörpers mit der Hauptwohnseite nach Südwesten ergibt sich durch die örtlichen Gegebenheiten und den Anspruch, dass beide Baukörper mehr Luft zueinander bekommen. Auf der Südwestseite eröffnet sich damit nicht nur der schöne, unverbaute Blick in Richtung Bergmassiv, auch für den Wohnkomfort bringt diese Seite durch Spätnachmittagssonne einen enormen Gewinn.

Derzeit in der Werkplanung.

Zurück
Zurück

Neubau Mehrfamilienhaus mit 6 Wohneinheiten

Weiter
Weiter

Wettbewerb: Holbox Eco Hostel